Obsah
Aktuální nabídka pronájmu
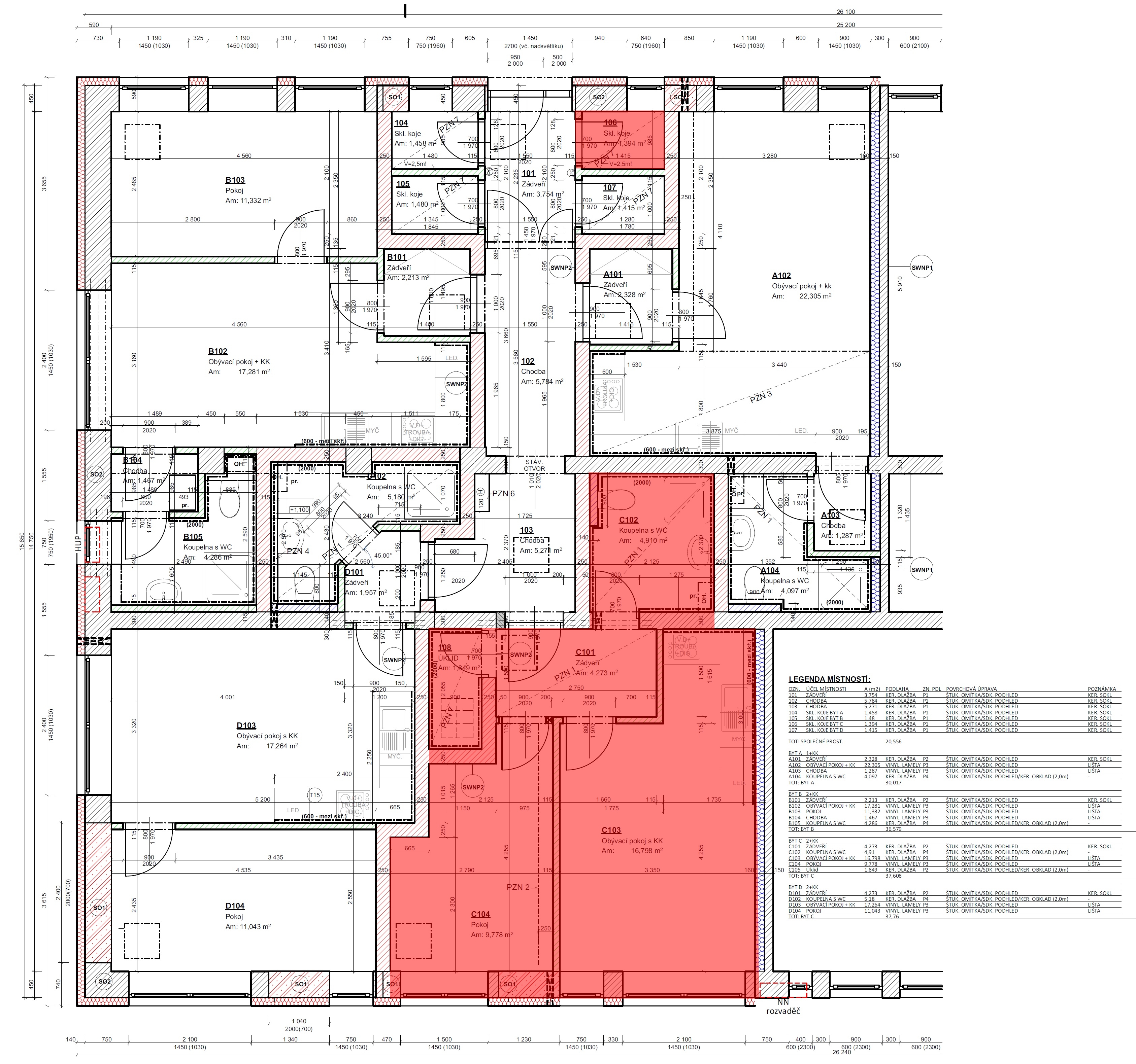
BYT A 1+KK (PLÁNEK ZDE)
ZÁDVEŘÍ 2,328 m2, OBÝVACÍ POKOJ + KK 22,305 m2, CHODBA 1,287 m2, KOUPELNA S WC 4,097 m2
CELKEM BYT 30 m2 + SKLADOVÁ KÓJE 1,4 m2
Nájemné: 3 700 Kč / měsíčně / byt
Zálohy na energie a služby: 1 000 Kč / měsíčně / osoba
(elektřina, vodné + stočné, teplo)
Osvětlení společných prostor: 150 / měsíčně / byt
Kabelová televize: 140 Kč / měsíčně / byt
Internet (v případě zájmu): ??? Kč / měsíčně / byt
Jistota / kauce: dvojnásobek měsíčního nájemného a záloh na služby
BYT B 2+KK (PLÁNEK ZDE)

ZÁDVEŘÍ 2,213 m2, OBÝVACÍ POKOJ + KK 17,281 m2, POKOJ 11,332 m2, CHODBA 1,467 m2, KOUPELNA S WC 4,286 m2
CELKEM BYT 36,6 m2 + SKLADOVÁ KÓJE 1,4 m2
Nájemné: 4 500 Kč / měsíčně / byt
Zálohy na energie a služby: 1 000 Kč / měsíčně / osoba
(elektřina, vodné + stočné, teplo)
Osvětlení společných prostor: 150 / měsíčně / byt
Kabelová televize: 140 Kč / měsíčně / byt
Internet (v případě zájmu): ??? Kč / měsíčně / byt
Jistota / kauce: dvojnásobek měsíčního nájemného a záloh na služby
BYT C 2+KK (PLÁNEK ZDE)

ZÁDVEŘÍ 4,273 m2, KOUPELNA S WC 4,91 m2, OBÝVACÍ POKOJ + KK 16,798 m2, POKOJ 9,778 m2, KOMORA 1,849 m2
CELKEM BYT C 37,6 m2 + SKLADOVÁ KÓJE 1,4 m2
Nájemné: 4 600 Kč / měsíčně / byt
Zálohy na energie a služby: 2 500 Kč / měsíčně / osoba
(elektřina, vodné + stočné, teplo)
Osvětlení společných prostor: 150 / měsíčně / byt
Jistota / kauce: dvojnásobek měsíčního nájemného a záloh na služby

ZÁDVEŘÍ 4,273 m2 , KOUPELNA S WC 5,18 m2, OBÝVACÍ POKOJ + KK 17,264 m2, POKOJ 11,043 m2
CELKEM BYT C 37,8 m2 + SKLADOVÁ KÓJE 1,4 m2
Nájemné: 4 600 Kč / měsíčně / byt
Zálohy na energie a služby: dle počtu osob
(elektřina, vodné + stočné, teplo, společné prostory)
Jistota / kauce: dvojnásobek měsíčního nájemného a záloh na služby











































